« Ακίνητα

Γραφείο

29-01-2021 17:58

Γραφείο
Γραφείο  (1)Γραφείο  (2)
Περιγραφή

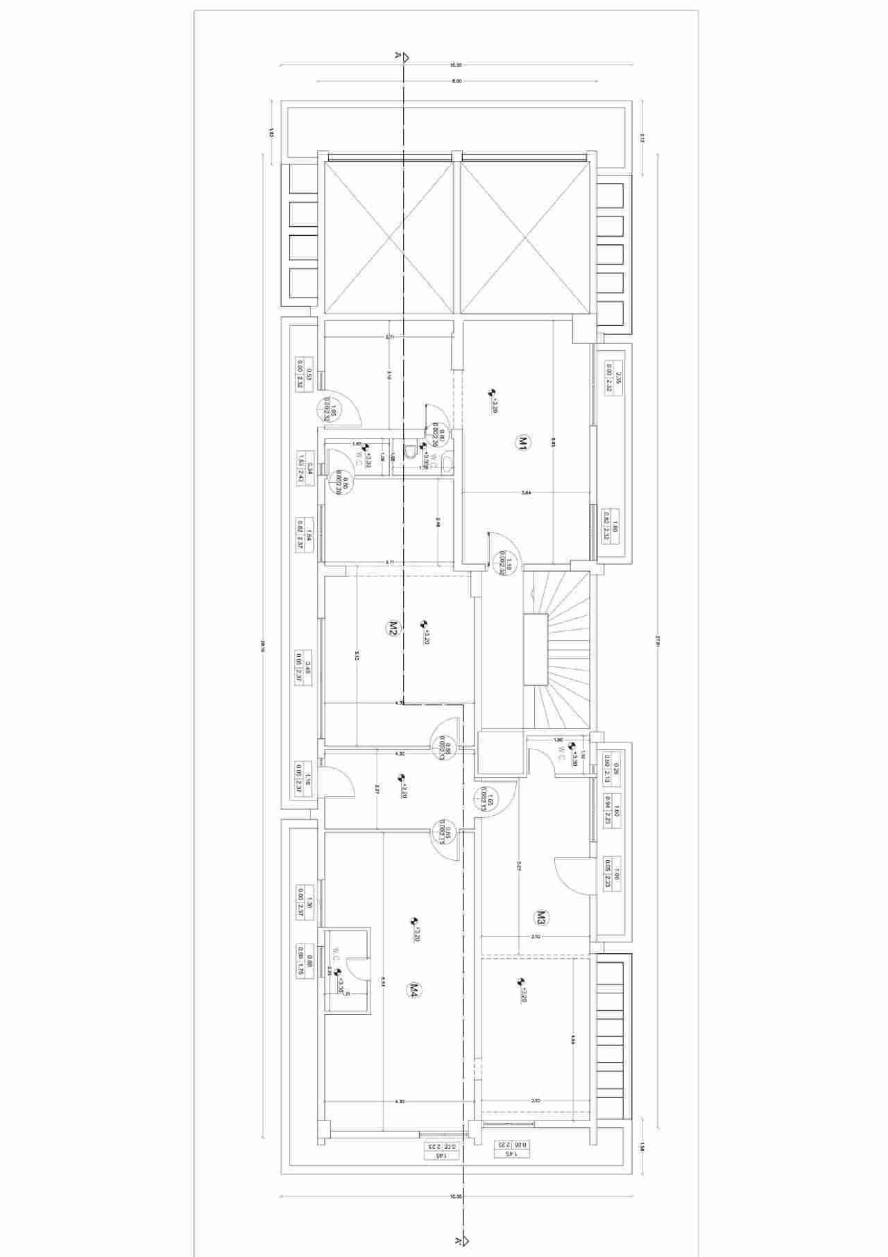
Ενοικιάζεται ή πωλείται επαγγελματικός διαμπερής χώρος 125τμ σε πολύ κέντρικό σημείο της πόλης της Ρόδου αποτελούμενος από τρείς ισόχωρους κύριους χώρους (M2, M3,M4 κάτοψης ) εκ των οποίων έκαστος διαθέτει χώρο υγιεινής κατάλληλους για τρία ανεξάρτητα δικηγορικά γραφεία, ιατρεία κλπ. με μηνιαίο ενιαίο μίσθωμα 950 ευρώ. Οι τρείς χώροι είναι σε πρώτο όροφο ανακαινισμένης πολυκατοικίας έχουν κοινό χώρο υποδοχής και πρόσβαση από ανεξάρτητη σκάλα της πολυκατοικίας. Στην ίδια πολυκατοικία ενοικιάζεται ή πωλείται υπόγειος χώρος 180 τμ. έναντι μηνιαίου ενοικίου 500 ευρώ. Πληροφορίες τηλ. 6972253826.


Στοιχεία επικοινωνίας

6972253826